«Es ist nicht nur die Sonne des Kosmos, die ihnen da oben den Körper bräunt und stärkt, es gibt auf Hägis auch noch eine andere Sonne, die Freude, die ihnen das Herz erwärmt und weitet. Hägis bedeutet für alle uns anvertrauten Kinder Sonne und Freude!» Arthur Schläpfer im Jahresbericht zum ehemaligen Ferienheim des Waisenhauses St. Gallen, 1945

JENNYHAUS TOGGENBURG

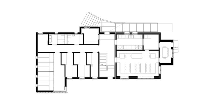
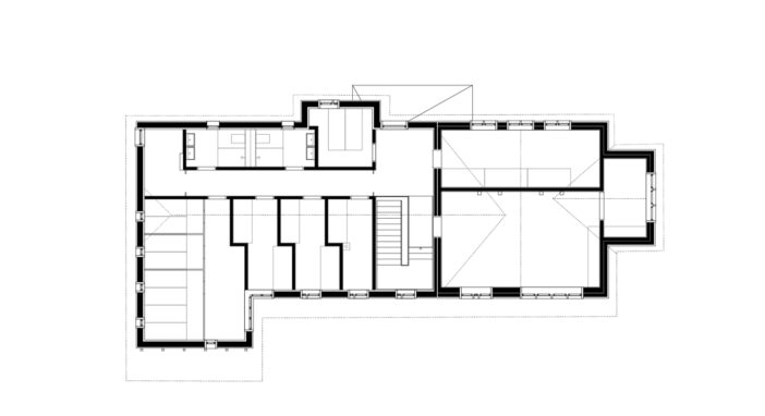
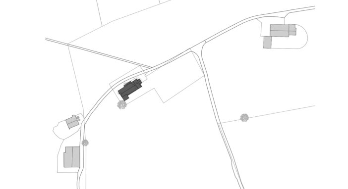
Gruppenhaus Jennyhaus Toggenburg am Schwendisee. Sanierung, Umbau und Teilersatz in Holzbauweise auf Massivbausockel.
2022 – 2025
«Es ist nicht nur die Sonne des Kosmos, die ihnen da oben den Körper bräunt und stärkt, es gibt auf Hägis auch noch eine andere Sonne, die Freude, die ihnen das Herz erwärmt und weitet. Hägis bedeutet für alle uns anvertrauten Kinder Sonne und Freude!» Arthur Schläpfer im Jahresbericht zum ehemaligen Ferienheim des Waisenhauses St. Gallen, 1945
  • Bauherrschaft: Ortsbürgergemeinde St. Gallen
  • Adresse: Hägis 746, Wildhaus
  • Gesamtbaukosten (BKP 1-6): CHF 3.2 Mio.
  • Planung und Realisierung: 2022 – 2025
  • Projektmitarbeit: Lorenz Brunner (Co-PL), Andreas Balthasar, Lena Hofer, Andrea Dell’Ambrogio, Lorenzo Ranu
  • Baumanagement: Stephan Selb (Co-PL), Pascal Minder
  • Bauingenieur: Gruner Schweiz AG, St. Gallen
  • Bauphysik: Studer + Strauss AG, St. Gallen 
  • Elektroingenieur: IBG B Graf AG Engineering, St. Gallen 
  • HLKS-Planer: Calorex AG, Wil
  • Holzbau / Brandschutzingenieur: LainPlus GmbH, Bühler
  • Landschaftsarchitektur: Martin Klauser, Rorschach
  • Kunst am Bau: Bivgrafik GmbH mit Frank Braun, Zürich
  • Fotografie: Roland Bernath, Zürich / Daniel Ammann, Herisau 
  • Leistungsumfang S&H: Projektierung, Ausführungsplanung, Baumanagement