«Die Positionierung des Stadthauses direkt an die Strasse erzeugt spannende Strassenraumakzentuierung zum Blumenbergplatz hin. Das Stadthaus erhält eine Scharnierfunktion» Auszug aus der Beurteilung des Sachverständigenrats
WOHNHAUS ZWINGLISTRASSE ST.GALLEN
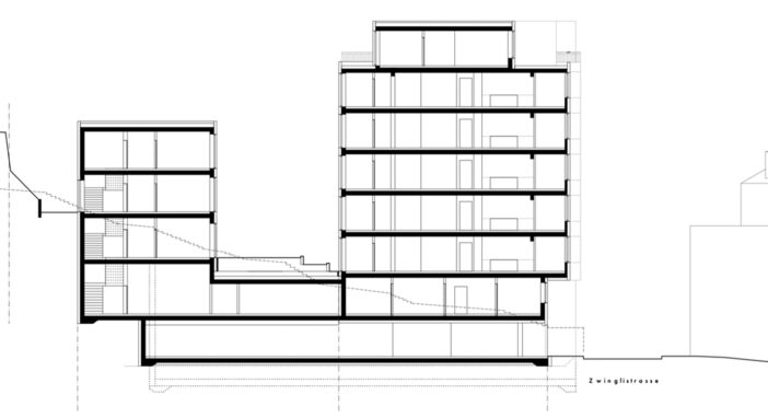
Mehrfamilienhaus Zwinglistrasse, St. Gallen. Neubau Mehrfamilienhaus in Massivbauweise.
2017 - 2023
2017 - 2023
«Die Positionierung des Stadthauses direkt an die Strasse erzeugt spannende Strassenraumakzentuierung zum Blumenbergplatz hin. Das Stadthaus erhält eine Scharnierfunktion» Auszug aus der Beurteilung des Sachverständigenrats
- Bauherrschaft: HRS Real Estate AG, Frauenfeld
- Adresse: Zwinglistrasse 2, St. Gallen
- Gesamtbaukosten (BKP 1-9): CHF 15 Mio.
- Projektierung: ab 2017 / Realisierung: 2021 – 2023
- Projektmitarbeit: Sören Davy (PL), Christian Gerspacher, Tobias Lenggenhager, Anna- Maria Scheuerlein
- Baumanagement: HRS Real Estate AG, St. Gallen
- Bauingenieur: Ribi + Blum AG, Romanshorn
- Bauphysik: Kopitsis Bauphysik AG, Wohlen
- Haustechnikplaner: Edwin Keller Partner AG, Gossau
- Elektro-& Brandschutzplaner: Prieto Stüdli Engineering GmbH, Arbon
- Fotografie: Roland Bernath, Zürich
- Leistungsumfang: Projektierung, Ausführungsplanung, gestalterische Leitung











