01_STAUFER-HASLER-ARCHITEKTEN_01_OCHSEN_URNÄSCH
«Gewölbekeller, Deckenmalereien, jahrhundertealte Holzbohlen – das Gasthaus Ochsen legt sein Innerstes frei. Die Sanierung des Gebäudes aus dem 17. Jahrhundert ist in vollem Gange.» Appenzellerzeitung / 12.11.2024

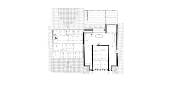
GASTHAUS OCHSEN URNÄSCH

Gasthaus Ochsen, Urnäsch. Umbau eines denkmalgeschützten Gasthauses mit Anbau in Holzbauweise.
2024 - 2025
«Gewölbekeller, Deckenmalereien, jahrhundertealte Holzbohlen – das Gasthaus Ochsen legt sein Innerstes frei. Die Sanierung des Gebäudes aus dem 17. Jahrhundert ist in vollem Gange.» Appenzellerzeitung / 12.11.2024

  • Bauherrschaft: Fevesta Wohnbau AG, Frauenfeld
  • Adresse: Dorfplatz 12, Urnäsch
  • Gesamtbaukosten: CHF 5.5 Mio
  • Direktauftrag: 2022
  • Realisierung: 2024 – 2025
  • Projektmitarbeit: Sören Davy (PL), Marcel Woerz (Kostenschätzung)
  • Baumanagement: rsp Bauleitung AG, Herisau
  • Bauingenieur & Brandschutzplaner: SJB Kempter Fitze AG, Frauenfeld
  • Haustechnikplaner: Richard Widmer Haustechnikkonzepte GmbH, Wil
  • Ofenplanung und Bau: Tobias Rutz, Dietfurt 
  • Bauakustik & Bauphysik: Mühlebach Partner AG, Winterthur
  • Gastronomiefachplaner: H plus S Gastronomiefachplanung GmbH, Ittigen
  • Lichtplaner: Charles Keller Design, St.Gallen
  • Leistungsumfang S&H: Projektierung, Ausführungsplanung, gestalterische Leitung